Products
News
更新時間:2015-11-25

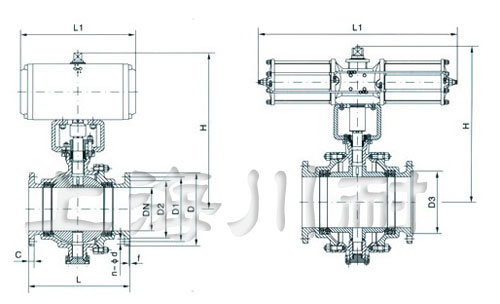
| 執行器型號 | GT、AT、ST、SR系列單雙作用氣動執行器 |
|---|---|
| 供氣壓力 | 0.4~0.7MPa |
| 氣源接口 | G1/4"、G1/8"、G3/8"、G1/2" |
| 環境溫度 | -30~+70℃ |
| 作用形式 | 單作用執行機構、雙作用執行機構 |
| 可配附件 | 定位器、電磁閥、空氣過濾減壓器、保位閥、行程開關、閥位傳送器、手輪機構等 |
| 公稱通徑(mm) | DN25—DN800 | |||||
|---|---|---|---|---|---|---|
| 公稱壓力PN(MPa) | 1.6 | 2.5 | 4.0 | |||
|
公稱壓力 PS(MPa) |
強度試驗 | 2.4 | 3.8 | 6.0 | ||
| 密封試驗 | 1.8 | 2.8 | 4.4 | |||
| 材料\材料代號 | C | P | R | |||
| 主要零件 | 閥體 | WCB | ZG1Cr18Ni9Ti | ZG0Cr18Ni12Mo2Ti | ||
| 球 體 | 2Cr13 | 1Cr18Ni9Ti | 1Cr18Ni12MoTi | |||
| 閥 桿 | 2Cr13 | 1Cr18Ni9Ti | 1Cr18Ni12MoTi | |||
| 密封圈 | 增強聚四氟乙烯 對位聚苯 硬質合金 | |||||
| 填 料 | 聚四氟乙烯 柔性石墨 | |||||
| 適用工況 | 適用介質 | 水、蒸汽、油品 | 硝酸類 | 醋酸類 | ||
| 適用溫度 | -28℃ - 300℃ | |||||
| 執行器 | 型 號 | AW/DA/SR系列、GTD/GTE系列、QGSY系列等 | ||||
| 氣源壓力 | 0.4-0.7MPa | |||||
| 執行標準 | 設計制造 | 結構長度 | 法蘭尺寸 | 壓力溫度 | 試驗檢驗 | |
| GB12237 | GB12221 | GB9113 | GB9131 | GB13927 | ||
